
The Club probably isn’t different from many other member-owned facilities in having had an extraordinary number of completed and unfulfilled plans over the years. New Boards of Directors are appointed, and inevitably new brooms sweep clean. The club has expanded organically over the years (as can be seen in the Timeline article), and plans have recently been located for the majority of proposed and fulfilled developments, allowing the creation of phase one of this topic.
We suggest that we firstly present the schemes which were actually constructed, then follow with the many which failed to come to fruition. Its amazing how many of the ‘failed’ schemes proposed the same changes, apparently (given the intervals between them and consequential board changes) without collusion between the originators. Commonality includes;
- Moving the main (east) staircase; five different locations near to the original and currently existing position, and one revolutionary new one to a repurposed court 3.
- Moving the kitchen; three iterations all involving moving it to the south east corner
- Moving the ladies changing room; three iterations, two from the west end to the east end, one to the north car park!
- The creation of a swimming pool; both iterations placing it in what is now the BBQ and garden area
- Modification of court 7, including it becoming a creche, a gym (but not a table tennis venue as happened)
- The addition of facilities on the north side of the building, effectively in the car park; two iterations providing a wide mix of facilities including admin, changing, physio, snooker and children’s space
Who could have predicted that none of these changes would take place? Indeed who could have predicted that Padel tennis would become a major feature of club life?
The Plans which happened
These are the plans, starting with the first ‘turf cut’ in 1936, proceeding to the current day construction of the Padel courts. Click on any of the years shown in the list below to take you directly to the topic.
- 1936 – The first Development – the birth of the club
- 1937-1938 Development, Courts 4, 5 and the Doubles court
- 1949 – The purchase of a house and garages in Belford Mews
- 1957 – Two tennis courts, new Ladies changing and a new lounge
- 1960 – The birth of the bar as we know it today
- 1962-1965 – Fire Escape improvements
- 1968 – Development, the new East block, and courts 6 and 7
- 1971 – Tennis court project
- 1986-1987 – Redevelopment of Courts 6 and 7
- 1990 – Tennis Court resurfacing
- 1994 – Fitness Room
- 1999 – Tennis court rebuild including lights
- 2014-2020 (and beyond) – The Padel revolution
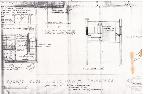
The 1936 Development – the birth of the club
Much has been said elsewhere about the raison d’être of the club – the Home page makes a start. This section of the history seeks to provide plans and specifications. The plans were recently uncovered, and the following short slideshow provides examples of the drawings and a contemporary photograph.
The Architects were Rowand Anderson and Paul, a notable Edinburgh organisation at that time. Prior to Arthur Paul being added to the company name (in 1921), Rowand Anderson was well known for designs including the McEwan Hall, The Scottish National Portrait Gallery and Glasgow’s Central Hotel. Basil Spence and William Kinnimonth joined the company in 1934, and Arthur Paul died in 1938, so some or all of those three were no doubt responsible for the design, which is evidently more sophisticated than the average Squash Club building, with several Art Deco features. Among the interesting features of the first development are creation in both Ladies and Men’s changing rooms of what would now be called showers. In those days they were referred to as ‘Spray’ Rooms. Also note the small scale of the Admin. facilities – restricted to just one small room – 7 feet by 6 feet – for the Professional (although there was ‘Committee Room’ on the first floor) – so where was the bar? Extra lockers were also shown in the lower courts corridor. The cost of the project is noted in the 1986 history as being £9,000, although the value of heritable property is shown in the 1946 accounts as being £11,834, and that sum may (indeed should) represent the cost of building to that date which would have comprised both the 1936 and 1937-38 projects. Your editor believes that a fairer cost of each of those projects is nearer £6,000 each.
Go back to ‘The plans which happened’
1949 – purchase of a house and garages in Belford Mews
The Board of Directors decided in 1949 that the club should provide the professional with accommodation, and the mews house at No 10 Belford Mews was purchased, along with two garages. The cost was £3,134, which was financed by a bond from the National Bank of Scotland. The club retained the property until 1960, when the house and one of the garages were sold for £2,210. The remaining garage was valued at £700, and was apparently sold in 1962 for an undisclosed amount (we do not have the 1962 accounts).
Go back to ‘The plans which happened’
.
1957 – Two tennis courts, new Ladies changing and a new lounge
In 1957, two hard (asphalt) tennis courts were installed in roughly the position of courts 1 and 2 today. It would be 1971 before a third court was installed, and 1984 saw court 1 floodlights. the Ladies changing room was relocated from the first floor (adjacent to the kitchen) to the west end of the club adjacent to court 5. The south half of the first floor of the East end of the club was converted into a lounge with a bar and dining facilities (described as a ‘snack counter’. The circular stools featuring in the bar/dining area photo are still in use in the upper gallery of the squash courts. The area which had been the ladies changing was converted into kitchen and small dining room for around 8 people (as recollected by Michael Campbell, and also shown in a drawing). The cost of these developments can be deduced from the increase of ‘Fixed Assets’ by around £2,400 in the 1958 Annual Report.
Go back to ‘The plans which happened’
.
1960 – The birth of the bar as we know it today
There is but one drawing, but it clearly shows the deletion (hatched lines) of the quarter-circular ‘cocktail bar’, and the creation of the bar as we know it today. Also created was a dinette area, and a lounge area where the kitchen currently resides. At this stage, the cellar was the room behind the bar, and as someone pointed recently out, there is no fire escape ! That was to arrive around 1965 (q.v.) For a full scale photo, click here
Go back to ‘The plans which happened’
1962-1965 – Fire Escape improvements
As described in the 1960 entry, there was no fire escape in the first floor lounge area, and the drawings we have show that the club was starting to take fire safety seriously, creating some of the fire escape elements, including fire doors and the creation of a Georgian wire glass enclosure for the main staircase. The 1965 drawing shows the two fire escapes which now exit at the south end of the bar area.
Go back to ‘The plans which happened’
The 1968 Development – the new East block, and courts 6 and 7
David Hollingdale, Chair in 1970-1971 was a Board member in 1968, and responsible for the progress of what was and still is the biggest single development since the club opened. Here he recounts the events.
The decision to build the extension and two more squash courts was motivated by pressure on bookings. Squash, previously a rather obscure exclusive sport had started to boom in a big way, and the Club felt it was close to being able to fund the project, and indeed having been postponed for a year, the decision was made to go ahead. The fruit machines were an extraordinary source of income, indeed in 1967 their surplus income was over 75% of membership subscriptions. The funding sources and project costs are shown later.
Magnus (Always Known as “Mac”) Slater (Club member) was the appointed architect on a design and supervise contract. Mac was a good friend of mine. We played squash together which I conceitedly regarded as magnanimous of me, because I played for the first team, actually the only team, whilst Mac was not bad but a standard lower. Mac was a somewhat pompous character. We remained friendly until his death about 20 years ago by which time he only contacted me when he wanted something, usually building advice or materials, the latter being a damned nuisance like, once asking for 600 bricks. I had to tell him that I was a contractor not a builders’ merchant, 6,000 bricks delivered by truck was easy, 600 bricks was not.
GKN (Guest Keen and Nettlefolds) – the name on most of the surviving drawings. As far as I know, they were purely steel suppliers, not Civil Engineers. They would have provided the steel reinforcement for in-situ concrete. I do not know if the supporting columns visible in the lounge are of reinforced concrete or rolled steel columns. GKN subsequently purchased Westland Aircraft in 1994 then went in a totally different direction. I cannot recall the identity of the Structural Engineers for our extension, but there must have been one. You are already aware that work took place over 1967-8.
The building contract was awarded to TB Williamson and Sons, a small family run and highly reputable business operating from premises in Craiglockhart Avenue. The company still trades from premises at Newbattle industrial estate. The two sons and two daughters now run the business. Despite being in the construction industry, I only have hazy recollections of the extension works. I think that is probably because I was overworked and understaffed within my firm (J Smart & Co (Contractors PLC), hence, I was only called upon at ESC if something went wrong, but not much did. I did vet our Quantity Surveyors’ (Morham & Brotchie) monthly valuations for payments to TB Williamson which sometimes needed correction, but TB Williamson himself handled his contract, and did a pretty good job. I think the whole contract was completed in about 6 months. I do remember that there was solid rock just beneath the surface of the ground, making for very sound foundations for the column bases. Near the end of the works, the plaster surface became “boss” on the front walls of the new courts 6 & 7. I was called to meet Tom Williamson. The failed plaster was removed. Squash court walls are plastered with an undercoat of gypsum plaster which had to be deeply scratched before the topcoat of “Keanes Cement” was applied, preferably before the undercoat was completely dry, to provide a good bond. Keanes Cement in modern specifications has been replaced with “Armourcoat” plaster. Removal of the plaster revealed no scratching at all. Williamson made no excuses, accepted the error and replastered the walls successfully.
There was a lawn between the east elevation of the original building and the stop netting of the two old, very rough tarmac tennis courts where tennis courts 1 and 2 are now. On summer days, members could lounge on deck chairs on the said lawn. The new extension was built over the site of the lawn, its east elevation being very close to the stopnet allowing only a narrow path between the building and the netting.
Sophie Gifford performed the official opening of the new extension by unveiling a plaque at the west end of the lounge in 1968, I do not know the exact date. The plaque vanished after some later refurbishment work (around 1999) when a false ceiling was fitted to accommodate downlighters. This concealed the rather beautiful timbered ceiling of which Magnus Slater was rather proud. I think the timbers were donated, probably by Campbell Mitchell, mentioned above. Alastair Allanach intends to search club storage areas for the plaque and reinstate it in its original position which I can indicate. If found, it would bear the precise date of the opening ceremony. Sophie Gifford (full maiden name: Sophia Mary Wharton Millar) was quite a character, very cut glass and extremely wealthy. She was regarded as a lifelong spinster. She astonished everyone by marrying Carlyle Gifford in 1960, 53 years after his first marriage. He was many years her senior, and she was no chicken. Carlyle was the cofounder in 1907 of Baillie and Gifford. Sophie was very keen on all sports, and was a generous benefactor to all of the clubs which she had been with. She would always help financially any of her clubs as necessary, particularly Murrayfield Tennis Club and ESC. I am told that she left £10,000 to over 20 clubs in her will in addition to donations made during her life. Carlyle died in 1975. Sophie continued to live in a vast top floor flat in Drumsheugh Gardens. The Hall was as big as my entire house. She had an old-fashioned maid in frilly apron who answered visitors, then ushered them into her presence. She was very down to earth, and always listened to what young people had to say. Latterly, until her death, she lived on Ravelston Dykes. Sophie had a season ticket to a prime centre court seat at Wimbledon. I once asked her how many days she went, and how long she stayed, she said: “Every day from start of play until the last ball’s struck.”
Oddly enough, when the new Courts 6 & 7 came into use, they were not very popular and were always the last to be booked. The main reason was that they felt strange compared to the existing courts which had firm, solid feeling floors whilst the new courts had normal floor construction, i.e. the floorboards rested on timber joists which gave the floor a “sprung” feeling which also made footsteps more noisy and altered the ball bounce slightly. The reason for the old floors solid feeling was revealed later when the floorboards of Court 4 sprung upward. On removal of the floorboards it was discovered that the joists were wedge shaped and set into concrete thus producing the solid effect with no “spring”. The joists were partially rotten, but as they were set thick end of the wedge down, they could only be removed by breaking out concrete with a pneumatic drill.
Up until the 1970s, the courts were all unheated. Before the extension, Court 5 had two outside walls so was even colder than the rest. The lob and drop shot players could serve a very high lob to the backhand court, leaving it to drop was not on because the cold ball would die stone dead, so an overhead backhand return was essential, almost impossible to get power with wooden racket and cold ball so the lobber was up front presented with a simple unreturnable drop shot. I often wonder how the modern belters would make out with heavy wooden rackets and cold balls, on freezing courts, often with condensation afflicted walls making a coherent game impossible. When we played league matches at the warm courts of the Pollock Gym or the Staff Club, we felt suddenly possessed of superhuman strength. Soon after the extension heating of Courts 6 & 7 was installed, followed later by heating on all courts.
Funding for the project came from a variety of sources. Sophie Gifford provided a gift (we think) of £10,000, the Scottish Education Department gave a grant of £9,625, a brewer’s loan of £5,500 was secured, and Club funds presumably provided the balance. The accounts of 1968 and 1969 show an increase in fixed assets of around £33,000, so this can be taken as an estimate of the project costs.
The slideshow below includes a variety of what appear to be early drawings of the scheme, along with a few photographs, one of which shows the detail of the fire escape door from courts 6 and 7, where the same Art Deco theme was used as in the 1937-1938 extension.
The 1968 sketch plan, showing the first floor level of the East extension
Go back to ‘The plans which happened’
The 1971 Tennis court project
The development of the tennis court area – David Hollingdale has provided an account..
New tennis courts constructed in 1970-1971. The original plan was to resurface the old tarmac courts (dating from 1957) with En Tout-cas “Tennisquik” (sic) porous concrete, with a third court at right angles on the lower level where David Abbey’s orchard now resides. I squashed this as a ridiculous waste of land and a clumsy layout, and suggested building a retaining wall at the river end (south east corner) up to the level of the existing courts, then infilling with hardcore to the new level to accommodate a third court parallel to the existing courts. The Board decision was touch and go, detractors against the proposal stating that ESC was purely a squash club and should remain so. The motion was carried by a whisker. I designed a brick retaining wall at the South East corner of the site, and supplied the bricks from the SOL Brick Company at Pumpherston of which I was a director. Ernie Flockhart and I negotiated the contract with En Tout-cas and supervised the works. Courts 1 and 2 proceeded. The upfilled area of Court 3 was left for a year to settle, then it was completed. The cost of the works can be deduced from the 1971 accounts which show an increase in Fixed Assets of £8,618.
Go back to ‘The plans which happened’
.
The 1986-1987 redevelopment of Courts 6 and 7
A decision was taken, probably around 1985, to modify the court 6 and 7 facility to allow optional tiered seating in Court 7 to enable court 6 as a facility capable of TV coverage. A TV room was to be constructed on the East side of the court, enabling camera coverage from the front of the court. The original build in 1968 consisted of two solid back walls, and a viewing gallery at first floor level, accessible from the corridor on the east side of court 5. This construction was demolished, along with the first floor external fire stair, and two glass back walls installed, the court 6 one being conventional, while the court 7 one folded back in two parts, and removable tiered seating (for 81 spectators) could be installed in the court space.
The project went ahead, and a couple of events were held in the new facility, but it was not a long term success. In 1988, The World junior men’s tournament was held in Scotland, and the Club co-hosted the event, and a little later the court 6 was repainted for ‘TeleSquash’, an event which was planned in expectation the many of the World’s top players would participate. The court surfaces were painted in colours which allegedly were to aid viewers ability to follow the ball. The ball was also an innovative colour, designed by an English dentist who created a dimpled reflective white version. One remembers that years (and several floor sanding iterations) later we were still trying to erase the colour from the floor, green as it happened. The glass back courts continued to be the least popular option for play, and for some reason court 7 floor was very uneven.
The cost of the project was shown in the 1988 Annual Report as £68,543 assuming the ‘Increase in Heritable property’ entry refers to the development.
Go back to ‘The plans which happened’
.
1990 – Tennis Court resurfacing
The 1990 accounts show an increase in heritable value of £31,500 which was expended on the resurfacing of all three tennis courts. The material was described as ‘modern multi-purpose surface.
Go back to ‘The plans which happened’
.
The 1994 Fitness Room
An open competition was held in the early 1990’s, seeking proposals from Architects to redesign the club to create a number of distinct new features. These included:
- New Ladies changing facilities, relocated to the east end of the building; the former ladies changing room would be subsumed into the fitness room
- A new semi-circular staircase access at the front door, with redesigned reception
- A Fitness Room
Several Architects replied, and from the shortlist of three, McLaren, Murdoch and Hamilton (MMH) were selected. The attached plan shows the lower floor of the building with all three proposals illustrated. Ladies changing moved into the space previously occupied by the Men, with the snooker room relocating to somewhere above court 5, making space for the new Men’s changing. The Fitness Room expanded into the former Ladies Changing. A sophisticated-looking circular staircase became the new access to the upper floor, and an enlarged reception and shop was created at the front entrance. Not currently shown are the first floor changes which included repositioning the kitchen at the extreme South of dining area.
In the event, the only part which was executed was the Fitness Room, completed in mid-1994, with funds of approximately £90,000 fortuitously recovered from a VAT enactment (described thus by VAT expert Mary Hallam: ESC benefited from the introduction of the VAT sporting services exemption for non-profit making organisations in 1994 and as a result received a substantial repayment of overpaid VAT). The 1995 Annual Accounts show the sum £73,101 as an addition the ‘Heritable Property’ component of our tangible fixed assets. This author (AA) assesses that as a combination of of £66,000 for the Fitness Room and £3,500 each for the Steam and Sauna facilities. The much reduced committee of the time (Messers Clark, Hunter and Allanach) elected to spend the money quickly on a sports related development before allowing other ‘influences’ to act otherwise. The The only other facilities added from this source was the Sauna and Steam facilities in Men’s and Ladies changing rooms respectively. A straw poll of each gender made the decision; in the event the Ladies Steam Room equipment expired after just a few years, while the Men’s Sauna continues to be a valuable and much-loved facility some 26 years later. The steam room required a space which had not been planned, so a two metre square ‘box’ area was extracted from the south east corner of the fitness room, and still annoyingly occupies that space today, despite the steam room now being a store room.
Anecdote – one of the options for the Garden/BBQ area was the creation of a badminton court. It would have been feasible in footprint terms (a.k.a. ‘Plan’), but the height (a.k.a. Elevation) could have been an issue if we wanted the roof clearance to be sufficient for a certain grade of play, e.g. Regional Leagues or similar. It became apparent that the required height would be greater than the existing highest part of the building, i.e. Courts 6 and 7, so we knew we had to make a case in Planning terms. We were advised that the aspect from the Water of Leith walkway was sacrosanct, and views, for instance of the Modern Art gallery should not be compromised by the new build. One factor was the number of users of the walkway, so a volunteer junior (Richard Pratt as we recollect) was dispatched with a clipboard, paper and pencil. The outcome sadly is not recorded !
A footnote to this account concerns the company who undertook the construction of the Fitness Room. They sadly went out of business immediately following the completion of our contract ! During the build phase, they constructed the long roof trusses offsite, and when they came to try to manoeuvre them round the extreme bends on the access road, failed completely, had to split them into bits and bring them back and weld them together on site. That difficulty gave rise to concern among individuals considering the 2005 Development – how on earth was the restricted access to Club (a restriction which most of us hold dear) going to allow the passage of colossal amounts of material during the development?
Go back to ‘The plans which happened’
The 1999 Tennis court rebuild including lights
Full rebuild, one metre excavation, graded rubble and new carpet.. Curiously, it was found that at some point a carpet had been laid on top of another carpet, most likely creating the conditions which had caused court flooding for years. New pylons, electrical system and lighting was installed, replacing the lights which ex-Chairman John Jones said he had (legally) purloined from a project at Edinburgh Airport, they being about to be binned. The 1999 accounts show a capitalisation of around £50,000, but your editor recollects a number nearer £70,000. It proved to be good work, there having been just one carpet re-lay since.
Go back to ‘The plans which happened’
.
2014-2020 – The Padel revolution
The Chairman’s remarks in the 2014 Annual Report included the following:
“The biggest change we have introduced in recent history is installing a Padel Tennis Court. This has expanded our Rackets offering for no additional cost to members. I would like to thank our Manager, Jonathan Tait who has been the driving force behind this new venture. He saw the rapid development in Spain and the opportunity to be the first Club in Scotland to install a court. Already other Edinburgh and Scottish clubs are investigating Padel”.
Some years later, and many members have been very grateful for the extra facilities, and 2021 will see the completion of the scheme with three covered courts: quite a change from the initial single uncovered court. A Padel page is available (or will be available) elsewhere on the site.
.
Go back to ‘The plans which happened’
.
The Plans which didn’t happen
The Club has had many unfulfilled plans over the years
- The 1986 comprehensive plan which included a swimming pool, 8th squash court and numerous other features. Didn’t seem to advance beyond the sketch stage.
- The 1996 bid by a notable Edinburgh developer to create a much enhanced product, at what would have been much increased subscriptions. The project failed largely when the Company owner realised there was no room for parking after all the new developments had taken place
- The 1997 Approach by a London fitness club, which failed after one meeting
- The 1997 Comprehensive plan, spawned from the 1990 Architects competition to create three major upgrades. Initially supported by the members, then voted down in an EGM. Tony Blair’s arrival in 1997 changed the basis of Lottery Funding
- The 2002-2003 plans for a merger with Murrayfield Lawn Tennis Club
- The 2005 (?) proposal to demolish the existing club, build a new one in the west car park, and build flats on the tennis courts. Unsurprisingly, this failed but only after several high-powered presentations, including one by Richard Murphy
- The 2010+ project to build a Real (Royal) tennis court in the car park to the West of the club
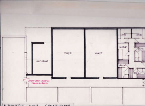
The 1986 Comprehensive Plan
Further investigation is required to establish the driver for this scheme. Virtually the entire footprint of the potential built area (i.e. excluding the tennis courts and west car park) was to be developed, including a strip of buildings to be added to the North elevation. Hopefully further information will be gleaned from Board members of that era. The 1986 Annual Report states “Announcement of the Board’s proposals was further delayed when we heard that an adjacent proprietor (presumably the Dragonara Hotel) planned extensive additions, including some leisure facilities. The implications of this for the Club had to be carefully considered”.
In the meantime, all that remains is a sketch drawing, reproduced below. Among the controversial (and complicated) changes are the conversion of court 3 into reception and the main access staircase. The reduction of one court was balanced by the creation of two further courts (8 and (9) tacked on to the west elevation of the club. View a larger image here

This plan included just about everything possible. The entire garden/BBQ area was developed on two levels, and part of the car park also turned into office and changing facilities. Squash courts 8 and 9 were to be added at the location of what is now the fitness room, making a net gain of one court given that court 3 was to become reception, shop and a staircase. The drawing shown above was described as a sketch plan.
Further plans are shown in the slideshow below, and appear to be modifications of the ‘Comprehensive’ plan. The development of the Garden/BBQ area is there, but some of the changes to the East of the building are more modest. The complexity of the changes and their relationship are somewhat difficult to comprehend. In any case, in the event, none of it happened, but it may well have been the precursor to the ‘Open competition between Architects’ of around 1990 which saw the the plan involving the Gym, semi-circular main staircase, and Ladies changing moving the east end of the building.
.
The 1996 proposal from a substantial Edinburgh developer
The board was approached by a well known Edinburgh developer (a principal of whom was a Club member) who wanted the Club to consider a comprehensive development. This would have involved a high quality build of new facilities including a very large fitness suite occupying most of the garden/BBQ area. The west end of the club was also to be enhanced, using much of the existing over-spill parking area. The board was invited to the company offices in the New Town, where three dimensional cardboard models of the development were on view. During the meeting, it became clear that the principal had not been made particularly aware of the scale of the development, and that little car parking space was left after all the new build. Given that subscriptions were roughly to double to fund the development, and that the new member base of two-Range Rover households wouldn’t be best pleased when they found that they had to travel to the club by public transport, the scheme disappeared. Perhaps the developers hadn’t noticed that there isn’t anywhere to park nearby. Future developers beware…
.
The 1997 overture from a London fitness club owners
The Board was approached early in 1997 by representatives of a major London Fitness Club. They muscled their way into a meeting in the splendid offices of a then current Board member, and their presentation contained little or no proposals which would be of any benefit to the Club. They were not seen again.
.
1997 – Drumseugh Baths Club overtures
.While work was proceeding on the ‘Comprehensive Lottery Bid’, overtures were made and received from The Drumseugh Baths Club. Your editor recalls meetings held with the then Board, which seemed to comprise just two or three individuals. One of the drivers from their point of view was the decision by the council to change Belford Road from free to chargeable parking . For regular Club users, this could have added over £200 to their annual membership, which was already considerable.
The nature of the discussions fades with time, but considering that ESC was considering a pool as part of the Lottery Bid, that was on the table. We also talked about renting them parking space, and operating a shuttle bus. The best option was some form of joint membership, but after the meetings there was no further progress. In the event, the Drumseugh website History topic (4th page) describes how the club faced bankruptcy in the early 2000’s when they struggled with the loan payments after a major overhaul of the club. Perhaps we were inadvertently fortunate !
The 1996-98 Comprehensive Lottery bid
The origin of the 1997-1998 development lay in the 1990 Architects competition, and subsequent build from that outcome. In the event, just one of three major components were completed (the fitness room), while the other two (major upgrades to men’s and ladies changing, and a new staircase with associated reception and office facilities) were not. The board were encouraged by a caucus of members to move the project forward, and it was in this process that the suggestion of Sports Lottery Funding was raised, not just as a suggestion but more of a necessity; members, we were told, would simply ask why Lottery Funding had not been considered should we attempt to go ahead without trying.
In the event, one member took on board the task of applying, and quickly realised that it was no easy task. Professional help (Management accountants Pannell Kerr Forster) had to be enlisted, and a variety of reports had to be created for all manner of necessities adjunct to the application. The Annual Reports show that over two years, in excess of £20,000 was spent on the project. Several exhibitions were mounted (usually in the doubles court) and eventually the project was put to a vote at an EGM. It failed, partly due to a ‘barrack room’ lawyer brigade, but who knows, they may have been correct. The plan was redrawn and a second EGM and vote were held, and once again failed. The conclusion which was reached by several individuals (all still members) that development should not be put to an EGM, but be the subject of extensive ‘behind the scenes’ investigation and agreement. The 1968 development, and the 2014 onward Padel development followed that model, and were successful.
This was one of several comprehensive development proposals, all of which excepting the 1936, 1937-38, 1968 and 2014 (Padel) projects have resulted in much hard work, but failure.
.
2002-2003 – Merger with Murrayfield tennis club
Colin Robertson has provided an account of the 2002-2003 merger discussions with Murrayfield Lawn Tennis club. A condensed version is shown here, with the full version available as a PDF here.
Merger proposal discussions between Edinburgh sports club (ESC) and Murrayfield Lawn Tennis Club (Murrayfield) have taken place twice, firstly in 1955-56, and secondly in 2001-2003. This document seeks to describe the processes involved and the decisions taken. In both cases the proposals were rejected.
The 1955-1956 proposals
During the nineteen fifties and sixties, the effects of emerging from the Second World War helped to create a difficult period for both clubs. Murrayfield was approached by ESC in November 1955 proposing the amalgamation of the two clubs, ESC claiming that the amalgamation would offer Murrayfield members a variety of club improvements. The basis of the proposal was that Murrayfield would sell the site at 57 Corstorphine road and from the proceeds lay four tennis courts in the grounds of ESC at Belford Place.
The Murrayfield committee had at first thought that some financial benefit might accrue from the merger but after a detailed study of the accounts of the sports club it was clear little or no advantage would be gained. There also the fear that before very long Murrayfield would lose its identity and become an offshoot of ESC. The Murrayfield committee decided that their recommendation must be against the amalgamation provided the club could continue to be run on a financially sound basis and this was confirmed by the members at the annual general meeting on Friday 23rd March 1956.
The 2001-2003 Proposals
During the latter part of the 20th century, membership at both ESC and Murrayfield was reducing, and areas of both clubs required attention with the need to be upgraded, with competition looming from new commercial clubs. Murrayfield approached ESC in late 2001, and after initial discussions both ESC and Murrayfield committees were given authority to proceed further with negotiations. The proposal was to sell the Murrayfield site at 57 Corstorphine road and invest the proceeds in ESC at Belford Place. Early indications were for a valuation £1.5m to £2.0m depending on planning. LTA funding was possible, and they predicted a cost of £250,000 per Indoor court.
The considered advantages of the merger were as follows:
ESC would benefit from
- Additional tennis courts, indoor and outdoor
- An injection of cash to rebuild squash courts and refurbish other areas
- Up to 100 new members from Murrayfield
- A tennis structure for the first time
Murrayfield would benefit from
- A minimum of 2 additional outdoor and 2 indoor courts
- Reduced rates of subscription for existing members
- Tennis to be a major sport within the merged club
- Development of tennis teams
- Professional help with administration
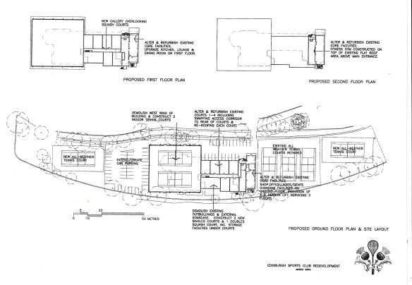
Facilities plans were prepared for the following
- Demolition of squash courts 5,6,7 and the doubles court
- Two indoor tennis courts to be built on the footprint of the demolition
- Two additional outdoor tennis courts to be built
- Two squash courts and a doubles squash court to be built in the garden/bbq area
- A new semi-circular main staircase and 6 person lift serving the existing second and a new third floor
- The third floor, above the main entrance consisting of a fitness room
- Refurbished changing rooms, lounge, bar and dining areas
The following drawing shows the proposed changes. Click here for a larger image. Note that this is the Murrayfield Tennis Club driven approach, which creates extensive tennis facilities, as opposed to the ESC contemporaneous developments which involved selling ground to develop housing, and using the proceeds to rebuild the club.
July 2002 meeting
After many meetings and discussions with all interested parties the developer of the site at Murrayfield agreed to apply for planning permission, and ESC would apply at the same time
In July 2002 a meeting was arranged to progress the planning application, but ESC intimated they were withdrawing from negotiations with Murrayfield and proceeding with a completely different development strategy with another interested party. ESC disputed the funding calculations, despite Murrayfield making what they thought were sound proposals, which did not take into account any LTA grant towards the indoor facilities. Murrayfield wondered why a possible investment of £1.5m/2m had been refused, and if there was a shortfall in funding why some reduction in facilities was not considered. ESC took the view that the proposals were potentially good for Murrayfield but not for ESC members.
In order to obtain a mandate for their proposal (over the Murrayfield one), a meeting was held at ESC on Wednesday 19th March 2003 to discuss the options, and ESC members were asked to submit their preference by 31st March. The most popular option would then be developed to allow members to vote on the implementation of that particular option at an EGM. The meeting was addressed by Allan Munro (ESC), Colin Robertson (Murrayfield) and David Hollingdale (ESC). The options under discussion were:
Option A – ESC develop their own plans, involving selling some land to build flats
Option B – ESC and Murrayfield progress the Club merging option
Option C – Club refurbishment only
The voting as shown below was inconclusive and gave no mandate to pursue a particular option.
Option a) 108 votes 48%
Option b) 98 votes 44%
Option c) 18 votes 8%
David Hollingdale was in favour and supported the Murrayfield option but failing that the refurbishment over a few years was his desired course. The meeting of ESC members clearly showed they felt some form of development was required and to try and bring matters to a conclusion the ESC board wrote to Murrayfield on 9th April 2003 to ask if they would like to re-enter discussions regarding a possible merger and develop plans as soon as possible, with ESC seeking a preferred developer. A meeting would then be called with a view of putting the two proposals to ESC members for consideration. However, Murrayfield were in talks with another party and at a meeting on 30th August 2003 the members of Murrayfield gave the committee an overwhelming directive to withdraw from negotiations with ESC.
The 2003-2007 Demolition and rebuild scheme
The Board of the time conceived and developed a plan which would have seen Edinburgh Sports club change forever (or perhaps just go bust and disappear).
The scheme broadly consisted of demolishing the existing buildings, building a new facility in the west car park, replacing the tennis courts on the footprint of the east end of the former building, and erecting flats in on the former tennis courts (then vice versa). The funding for the demolition and creation of the new club would come form a ‘donation’ from the company building the new flats. A later modification (2005) reversed the positions of the flats and the rebuilt club, the flats moving to the west car park, while the club was to be built on the site of the existing tennis courts – one can’t imagine what the residents of the nearby ‘White House’ would have thought of that!
Luckily, the amount which the developer was offering to pay for the rebuild of the club dropped, and kept dropping to a point where there was clearly no point in continuing. Phew – a narrow escape (in some members’ opinion)
The 2010+ proposal to build a Real (Royal) Tennis Court in the west car park
Angus Crichton-Miller, a club member and keen exponent of the Real Tennis art, spent some time constructing reports, schedules and other necessary documentation, but while it may have been a worthwhile project, and despite a couple of public meetings in the doubles court, it was not pursued. It was claimed that the potential circuit of professional players would have justified the project. Several members made visits to existing courts, including Falkland palace and Jesmond, Newcastle.

Jesmond Dene Real Tennis Club is said to be (in its website) one of only 27 Real Tennis courts in the UK and 46 in the world, so we would have been in a rarefied atmosphere. In the event one suspects it would have compromised the erection of the Padel courts – the interior of a real tennis court is around 110 feet by 39 feet (34 m × 12 m), – tennis is 78 feet by 36 feet (24m x 11m), while the centre line height is a minimum of 35 feet (11 metres), i.e. the same height as an indoor tennis court.
The same approach was tried at the Grange club a short while later, and came very close to fruition.
.
Acknowledgments
This article has been constructed with inputs form several members, and a wealth of plans, annual reports and photographs which thankfully have survived the ravages of storage, often in damp conditions. Contributors include;
- David Hollingdale
- Colin Robertson
- Brian Suddaby
- John Jones
- Alastair Mcintosh
- Jim Mclauchlan





