The Club has had many unfulfilled plans over the years:
- The 1955-56 plans for a merger with Murrayfield Lawn Tennis Club
- The 1986 comprehensive plan which included a swimming pool, 8th squash court and numerous other features. Didn’t seem to advance beyond the sketch stage.
- The 1996 bid by a notable Edinburgh developer to create a much-enhanced product, at what would have been much increased subscriptions. The project failed largely when the Company owner realised there was no room for parking after all the new developments had taken place
- The 1997 Approach by a London fitness club, which failed after one meeting
- The 1997 discussion with Drumseugh Baths
- The 1997 Lottery bid, spawned from the 1990 Architects competition to create three major upgrades. Initially supported by the members, then voted down in an EGM. Tony Blair’s arrival in 1997 changed the basis of Lottery Funding. This was quickly followed by a proposal to raise the roofs on courts 1 to 4, and change the reception, ladies changing and fitness room. That was also voted down.
- The 2002-2003 plans for a merger with Murrayfield Lawn Tennis Club
- The 2003-2007 proposal to demolish the existing club, build a new one in the west car park, and build flats on the tennis courts. Unsurprisingly, this failed but only after several high-powered presentations, including one by Richard Murphy
- The 2010 project to build a Real (Royal) tennis court in the car park to the West of the club
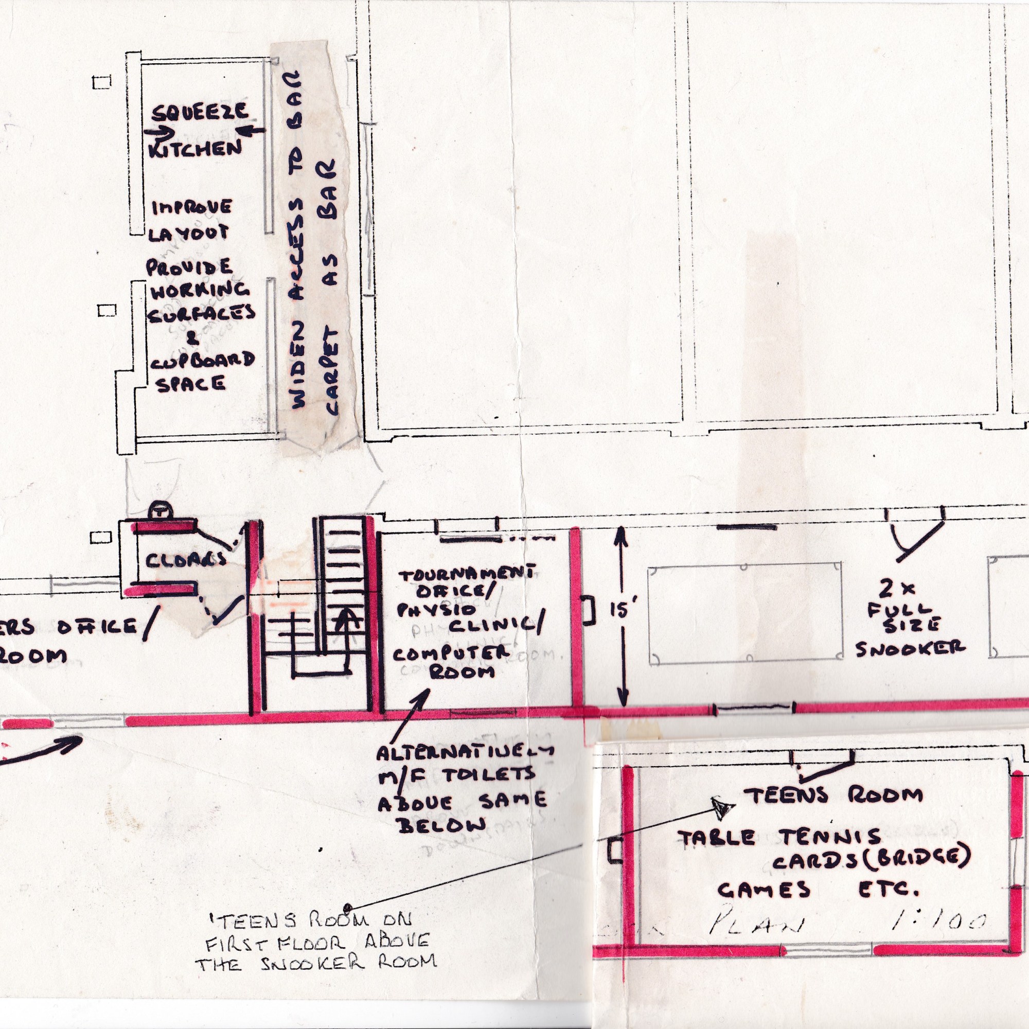
The 1986 Comprehensive Plan
Further investigation is required to establish the driver for this scheme. Virtually the entire footprint of the potential built area (i.e. excluding the tennis courts and west car park) was to be developed, including a strip of buildings to be added to the North elevation. Hopefully further information will be gleaned from Board members of that era. The 1986 Annual Report states “Announcement of the Board’s proposals was further delayed when we heard that an adjacent proprietor (presumably the Dragonara Hotel) planned extensive additions, including some leisure facilities. The implications of this for the Club had to be carefully considered”.
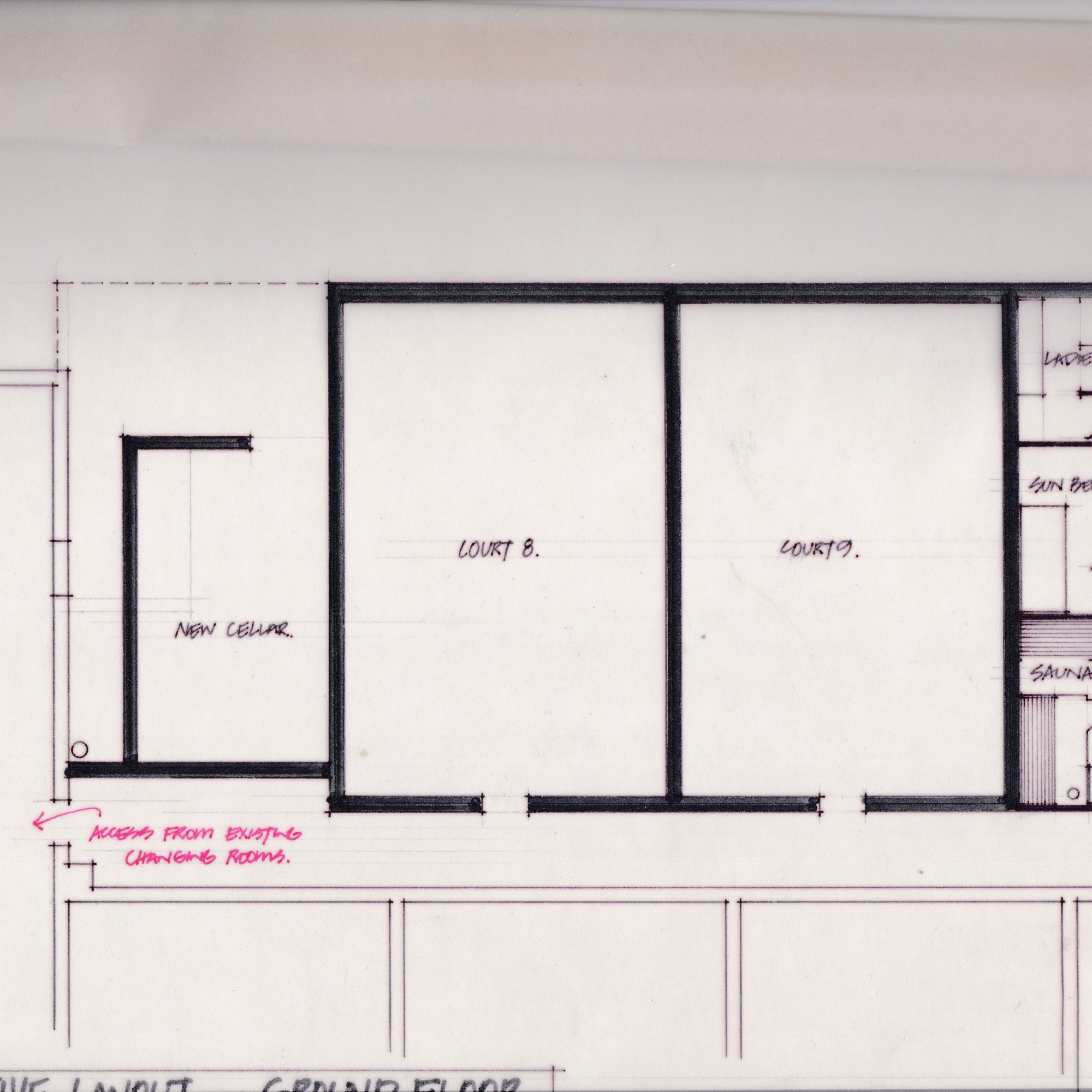
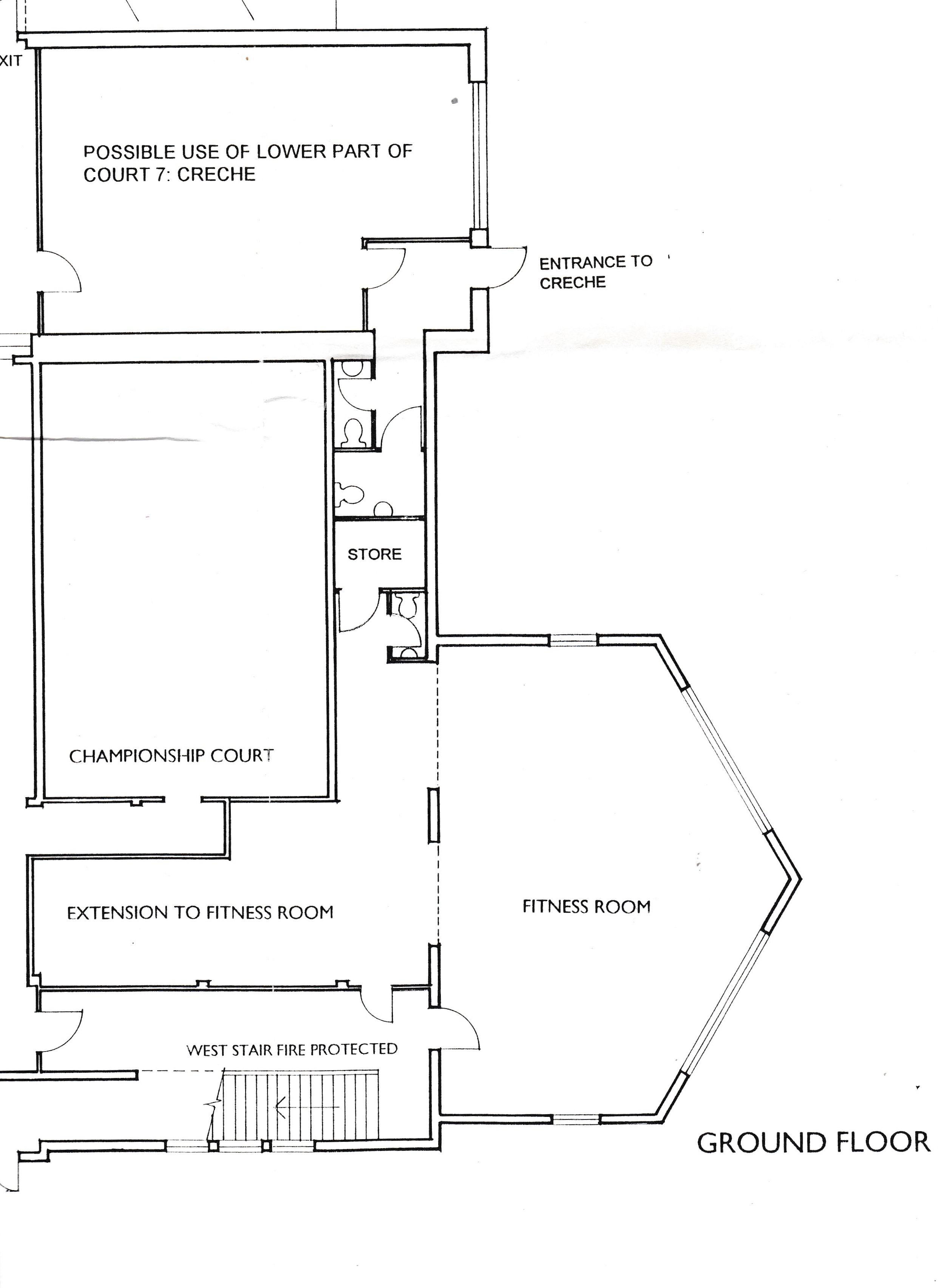
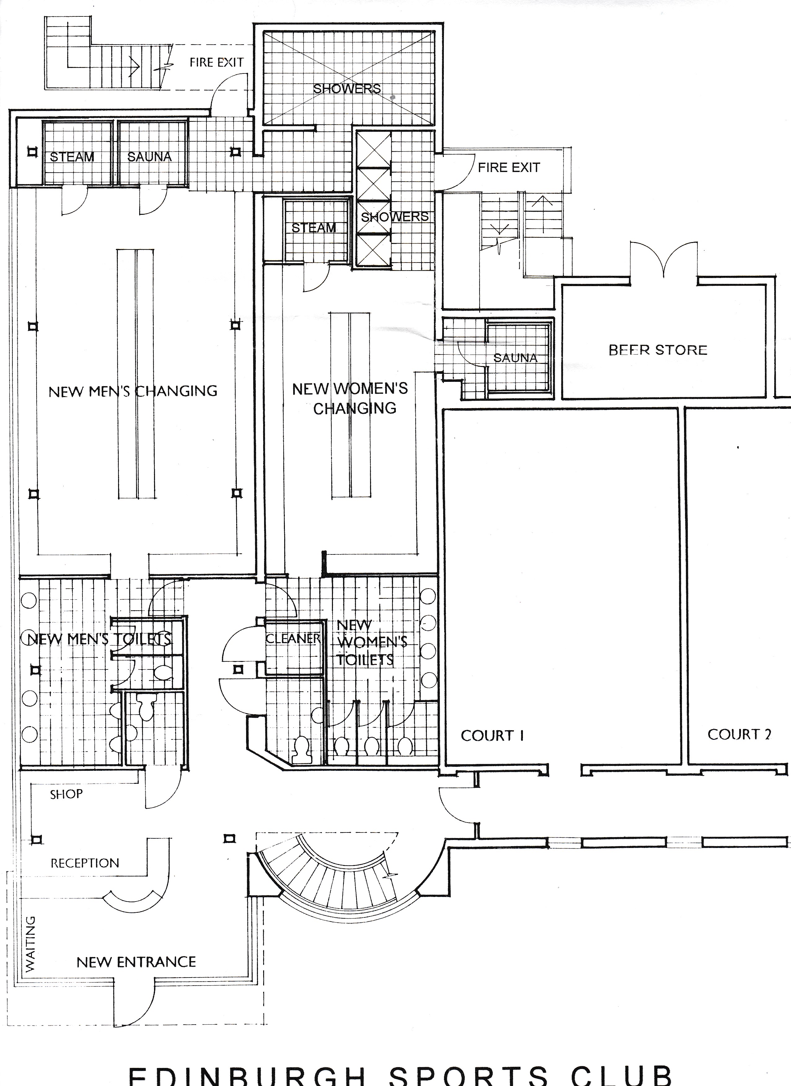
In the meantime, all that remains is a sketch drawing, reproduced below. Among the controversial (and complicated) changes are the conversion of court 3 into reception and the main access staircase. The reduction of one court was balanced by the creation of two further courts (8 and (9) tacked on to the west elevation of the club. View an image here.
This plan included just about everything possible. The entire garden/BBQ area was developed on two levels, and part of the car park also turned into office and changing facilities. Squash courts 8 and 9 were to be added at the location of what is now the fitness room, making a net gain of one court given that court 3 was to become reception, shop and a staircase. The drawing shown above was described as a sketch plan.
Further plans are shown in the slideshow below, and appear to be modifications of the ‘Comprehensive’ plan. The development of the Garden/BBQ area is there, but some of the changes to the East of the building are more modest. The complexity of the changes and their relationship is somewhat difficult to comprehend. In any case, in the event, none of it happened, but it may well have been the precursor to the ‘Open competition between Architects’ of around 1990 which saw the plan involving the Gym, semi-circular main staircase, and Ladies changing moving the east end of the building.
Click on any of the images below to enable a full-screen slideshow









The 1996 proposal from a substantial Edinburgh developer
The board was approached by a well-known Edinburgh developer (a principal of whom was a Club member) who wanted the Club to consider a comprehensive development. This would have involved a high-quality build of new facilities including a very large fitness suite occupying most of the garden/BBQ area. The west end of the club was also to be enhanced, using much of the existing over-spill parking area. The board was invited to the company offices in the New Town, where three-dimensional cardboard models of the development were on view. During the meeting, it became clear that the principal had not been made particularly aware of the scale of the development, and that little car parking space was left after all the new build. Given that subscriptions were roughly to double to fund the development, and that the new member base of two-Range Rover households wouldn’t be best pleased when they found that they had to travel to the club by public transport, the scheme disappeared. Perhaps the developers hadn’t noticed that there isn’t anywhere to park nearby. Future developers beware…
The 1997 overture from London fitness club owners
The Board was approached early in 1997 by representatives of a major London Fitness Club. They muscled their way into a meeting in the splendid offices of a then current Board member, and their presentation contained little or no proposals which would be of any benefit to the Club. They were not seen again.
1997 – Drumseugh Baths Club overtures
While work was proceeding on the ‘Comprehensive Lottery Bid’, overtures were made and received from The Drumseugh Baths Club. Your editor recalls meetings held with the then Board, which seemed to comprise just two or three individuals. One of the drivers from their point of view was the decision by the council to change Belford Road from free to chargeable parking. For regular Club users, this could have added over £200 to their annual membership, which was already considerable.
The nature of the discussions fades with time, but considering that ESC was considering a pool as part of the Lottery Bid, that was on the table. We also talked about renting them parking space, and operating a shuttle bus. The best option was some form of joint membership, but after the meetings there was no further progress. In the event, the Drumseugh Baths website topic (4th page) describes how the club faced bankruptcy in the early 2000’s when they struggled with the loan payments after a major overhaul of the club. Perhaps we were inadvertently fortunate !
The 1996-98 Comprehensive Lottery bid
The origin of the 1997-1998 development lay in the 1990 Architects competition, and subsequent build from that outcome. In the event, just one of three major components were completed (the fitness room), while the other two (major upgrades to men’s and ladies changing, and a new staircase with associated reception and office facilities) were not. The board were encouraged by a caucus of members to move the project forward, and it was in this process that the suggestion of Sports Lottery Funding was raised, not just as a suggestion but more of a necessity; members, we were told, would simply ask why Lottery Funding had not been considered should we attempt to go ahead without trying.
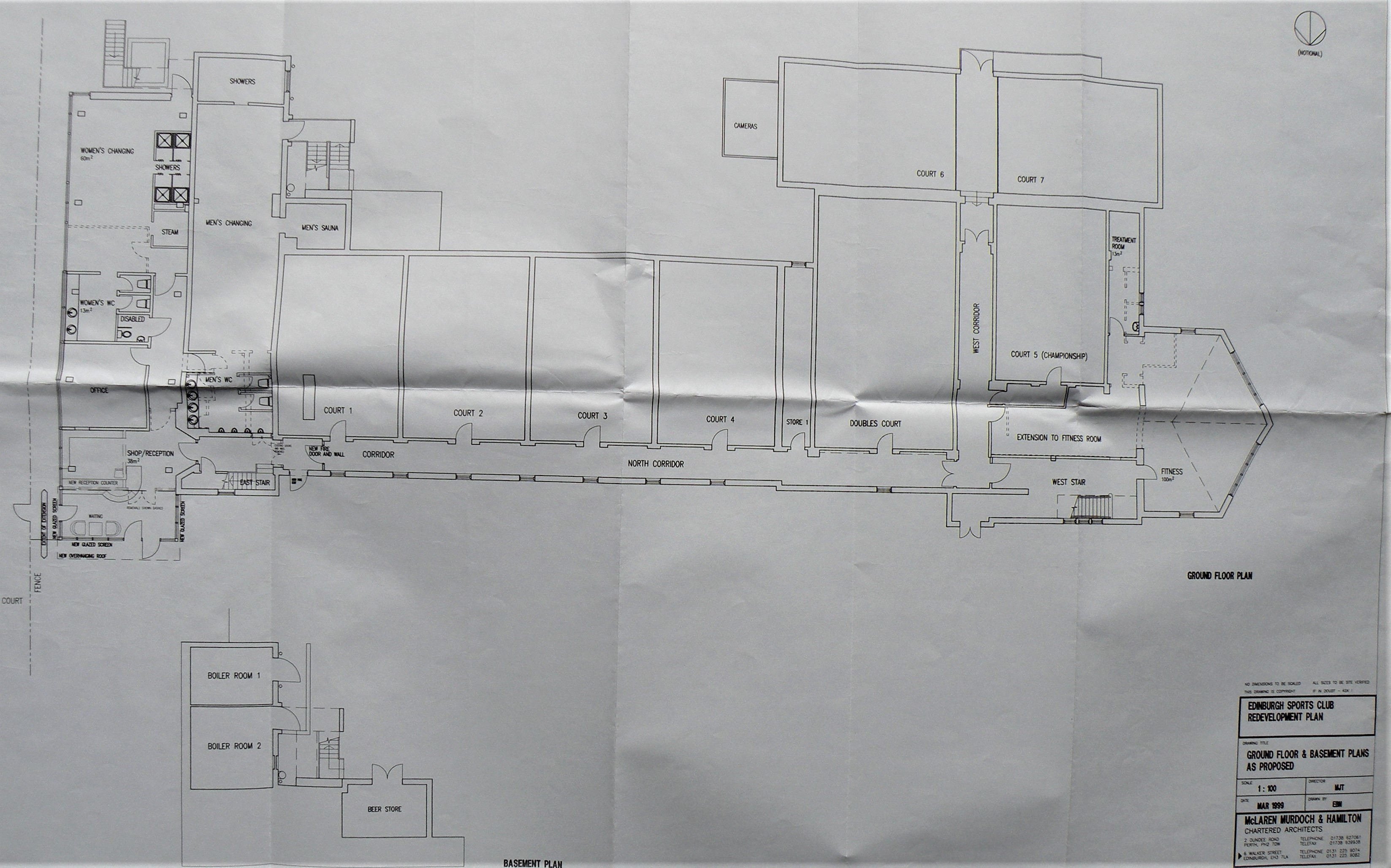
In the event, one member took on board the task of applying, and quickly realised that it was no easy task. Professional help (from Management accountants Pannell Kerr Forster) had to be enlisted, and a variety of reports had to be created for all manner of necessities adjunct to the application. The Annual Reports show that over two years, in excess of £20,000 was spent on the project. Several exhibitions were mounted (usually in the doubles court) and eventually the project was put to a vote at an EGM. It failed, partly due to a ‘barrack room’ lawyer brigade, but who knows, they may have been correct. The plan was redrawn and a second EGM and vote were held, and once again failed. The conclusion which was reached by several individuals (all still members) that in general, developments should not be put to an EGM, but be the subject of extensive ‘behind the scenes’ investigation and agreement, and probably most importantly, be able to be funded from Club reserves, grants and donations. The 1968 development, and the 2014 onward Padel development followed that model, and were successful. This was one of several comprehensive development proposals, all of which excepting the 1936, 1937-38, 1968 and 2014 (Padel) projects have resulted in much hard work, but failure.
The slideshow below shows a few images of the development plans, also a couple from the 1999 post-Lottery bid plans, which sought to raise the roofs of courts 1 to 4, create a new shop and ladies changing, and extend the fitness room. This proposal was defeated in an EGM vote (at least partially due to two members filibustering votes at the bar).










2002-2003 – Merger with Murrayfield tennis club
Colin Robertson has provided an account of the 2002-2003 merger discussions with Murrayfield Lawn Tennis club. A condensed version is shown below, with the full version available as a PDF here.
Merger proposal discussions between Edinburgh sports club (ESC) and Murrayfield Lawn Tennis Club (Murrayfield) have taken place twice, firstly in 1955-56, and secondly in 2001-2003. This document seeks to describe the processes involved and the decisions taken. In both cases the proposals were rejected.
The 1955-1956 proposals
During the nineteen fifties and sixties, the effects of emerging from the Second World War helped to create a difficult period for both clubs. Murrayfield was approached by ESC in November 1955 proposing the amalgamation of the two clubs, ESC claiming that the amalgamation would offer Murrayfield members a variety of club improvements. The basis of the proposal was that Murrayfield would sell the site at 57 Corstorphine road and from the proceeds lay four tennis courts in the grounds of ESC at Belford Place.
The Murrayfield committee had at first thought that some financial benefit might accrue from the merger but after a detailed study of the accounts of the sports club it was clear little or no advantage would be gained. There also the fear that before very long Murrayfield would lose its identity and become an offshoot of ESC. The Murrayfield committee decided that their recommendation must be against the amalgamation provided the club could continue to be run on a financially sound basis and this was confirmed by the members at the annual general meeting on Friday 23rd March 1956.
The 2001-2003 Proposals
During the latter part of the 20th century, membership at both ESC and Murrayfield was reducing, and areas of both clubs required attention with the need to be upgraded, with competition looming from new commercial clubs. Murrayfield approached ESC in late 2001, and after initial discussions both ESC and Murrayfield committees were given authority to proceed further with negotiations. The proposal was to sell the Murrayfield site at 57 Corstorphine road and invest the proceeds in ESC at Belford Place. Early indications were for a valuation £1.5m to £2.0m depending on planning. LTA funding was possible, and they predicted a cost of £250,000 per Indoor court.
ESC would benefit from
- Additional tennis courts, indoor and outdoor
- An injection of cash to rebuild squash courts and refurbish other areas
- Up to 100 new members from Murrayfield
- A tennis structure for the first time
Murrayfield would benefit from
- A minimum of 2 additional outdoor and 2 indoor courts
- Reduced rates of subscription for existing members
- Tennis to be a major sport within the merged club
- Development of tennis teams
- Professional help with administration
Facilities plans were prepared for the following
- Demolition of squash courts 5,6,7 and the doubles court
- Two indoor tennis courts to be built on the footprint of the demolition
- Two additional outdoor tennis courts to be built
- Two squash courts and a doubles squash court to be built in the garden/bbq area
- A new semi-circular main staircase and 6-person lift serving the existing second and a new third floor
- The third floor, above the main entrance consisting of a fitness room
- Refurbished changing rooms, lounge, bar and dining areas
The following drawing shows the proposed changes. Click here for a larger image. Note that this is the Murrayfield Tennis Club driven approach, which creates extensive tennis facilities, as opposed to the ESC contemporaneous developments which involved selling ground to develop housing, and using the proceeds to rebuild the club

July 2002 meeting
After many meetings and discussions with all interested parties the developer of the site at Murrayfield agreed to apply for planning permission, and ESC would apply at the same time
In July 2002 a meeting was arranged to progress the planning application, but ESC intimated they were withdrawing from negotiations with Murrayfield and proceeding with a completely different development strategy with another interested party. ESC disputed the funding calculations, despite Murrayfield making what they thought were sound proposals, which did not take into account any LTA grant towards the indoor facilities. Murrayfield wondered why a possible investment of £1.5m/2m had been refused, and if there was a shortfall in funding why some reduction in facilities was not considered. ESC took the view that the proposals were potentially good for Murrayfield but not for ESC members.
In order to obtain a mandate for their proposal (over the Murrayfield one), a meeting was held at ESC on Wednesday 19th March 2003 to discuss the options, and ESC members were asked to submit their preference by 31st March. The most popular option would then be developed to allow members to vote on the implementation of that particular option at an EGM. The meeting was addressed by Allan Munro (ESC), Colin Robertson (Murrayfield) and David Hollingdale (ESC). The options under discussion were:
Option A – ESC develop their own plans, involving selling some land to build flats
Option B – ESC and Murrayfield progress the Club merging option
Option C – Club refurbishment only
The voting as shown below was inconclusive and gave no mandate to pursue a particular option.
Option a) 108 votes 48%
Option b) 98 votes 44%
Option c) 18 votes 8%
David Hollingdale was in favour and supported the Murrayfield option but failing that the refurbishment over a few years was his desired course. The meeting of ESC members clearly showed they felt some form of development was required and to try and bring matters to a conclusion the ESC board wrote to Murrayfield on 9th April 2003 to ask if they would like to re-enter discussions regarding a possible merger and develop plans as soon as possible, with ESC seeking a preferred developer. A meeting would then be called with a view of putting the two proposals to ESC members for consideration. However, Murrayfield were in talks with another party and at a meeting on 30th August 2003 the members of Murrayfield gave the committee an overwhelming directive to withdraw from negotiations with ESC.
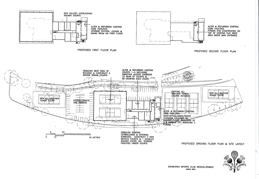
The 2003-2007 Demolition and rebuild scheme
The Board of the time conceived and developed a plan which would have seen Edinburgh Sports club change forever (or perhaps just go bust and disappear).
The scheme broadly consisted of demolishing the existing buildings, building a new facility in the west car park, replacing the tennis courts on the footprint of the east end of the former building, and erecting flats in on the former tennis courts (then vice versa).

The funding for the demolition and creation of the new club would come form a ‘donation’ from the company building the new flats. A later modification (2005) reversed the positions of the flats and the rebuilt club, the flats moving to the west car park, while the club was to be built on the site of the existing tennis courts – one can’t imagine what the residents of the nearby ‘White House’ would have thought of that!
Luckily, the amount which the developer was offering to pay for the rebuild of the club dropped, and kept dropping to a point where they were demanding money from us, so there was clearly no point in continuing. Phew – a narrow escape (in some members’ opinion).
**
We have managed to uncover a number of images of these fanciful 2003 and 2005 projects, which make fascinating viewing; no explanation has been given about how the demolition and removal of material was going to take place, how the club was going to manage in the future with very few parking places, and where club members would find their sport during the presumably lengthy development cycle. Anyway, we were spared; it never happened.
























Sadly, no evidence of any of the three-dimensional models which flooded the club for a while can be uncovered.
The circa 2010 proposal to build a Real (Royal) Tennis Court in the west car park
Angus Crichton-Miller, a club member and keen exponent of the Real Tennis art, spent some time constructing reports, schedules and other necessary documentation, but while it may have been a worthwhile project, and despite a couple of public meetings in the doubles court, it was not pursued. It was claimed that the potential circuit of professional players would have justified the project. Several members made visits to existing courts, including Falkland palace and Jesmond, Newcastle.
Jesmond Dene Real Tennis Club is said to be (in its website) one of only 27 Real Tennis courts in the UK and 46 in the world, so we would have been in a rarefied atmosphere. In the event one suspects it would have compromised the erection of the Padel courts – the interior of a real tennis court is around 110 feet by 39 feet (34 m × 12 m), – tennis is 78 feet by 36 feet (24m x 11m), while the centre line height is a minimum of 35 feet (11 metres), i.e. the same height as an indoor tennis court.
The same approach was tried at the Grange club a short while later, and came very close to fruition.
The slide show below explains how the 110 foot long court could be shoe-horned into the West car park. Sadly one of the casualties would have been the fitness room, another a loss of parking spaces, at least convenient ones. There is no evidence of a plan supporting the development, so we are unaware of the cost, disruption or any other aspects of this scheme. Click on any of the photos in the gallery below to enable a full sized screen show.



Acknowledgments
This article has been constructed with inputs form several members, and a wealth of plans, annual reports and photographs which thankfully have survived the ravages of storage, often in damp conditions. Contributors include;
- David Hollingdale
- Colin Robertson
- Alastair McIntosh
- Charlie Fyfe